• 外観

  • エントランス

  • エントランス

  • 外観

  • エントランス

施設概要

概要

所在地
〒818-0066 筑紫野市永岡1286-2
主要用途
住宅型有料老人ホーム
総室数
47室(定員47名)
居室面積
15m²
構  造
鉄骨構造 3階建
敷地面積
598坪
延床面積
543坪
入居要件
入居時、要介護1~5
権利形態
利用権方式(月払い方式)
開設月
平成25年5月1日
事業主体
医療法人雅円会
土地建物所有者・権利形態
自己所有

福岡県指定
通所介護事業所・訪問看護事業所

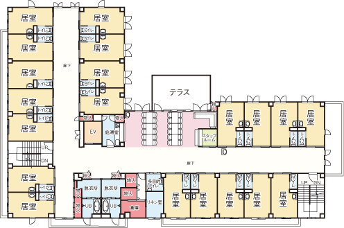
1階のご案内

ラベンダーヴィレッジ1階フロアマップ

談話室

1~3階のフロアに食堂・談話室を完備しています。

デイサービスルーム

ゆったり、広々とした憩いの空間です。

多目的ルーム

機能低下防止のためのトレーニング機器を設置しています。

特殊浴室

1階フロアに特殊浴室を完備しています。入浴介護が必要な方は、デイサービスのお風呂が利用できます。

厨房

栄養士の立てる献立表により、栄養と利用者の身体状況に配慮しバラエティーに富んだ食事をご提供いたします。

2~3階のご案内

ラベンダーヴィレッジ2~3階フロアマップ

談話室

1~3階のフロアに食堂、談話室を完備しています。

浴室

各階に2部屋個浴室を完備しています。
入浴介護が必要な方は、デイサービスのお風呂が利用できます。

居室のご案内

居室間取り図
部屋面積約9.0帖
居室設備
コードレスコール、冷暖房、洋式トイレ、洗面手洗い、防災カーテン、照明器具
家具等レンタル
急なご入居に対応できるよう、レンタル用生活備品を準備しております。
ゆったり居室スペース

約9.0帖の居室スペースはテレビ・ベッドなど、生活家具を置いても圧迫感がないきる広さです。

居室専用トイレ

トイレは各部屋にあるので気兼ねもありません。スライド式カーテンなので車イスなどでも入りやすくなっています。

居室専用洗面所

車椅子対応の洗面台を備えています。台の下が広く開いていますので、座って身支度やお化粧ができます。

コードレスコール

居室からいつでもスタッフに連絡できるから安心です。